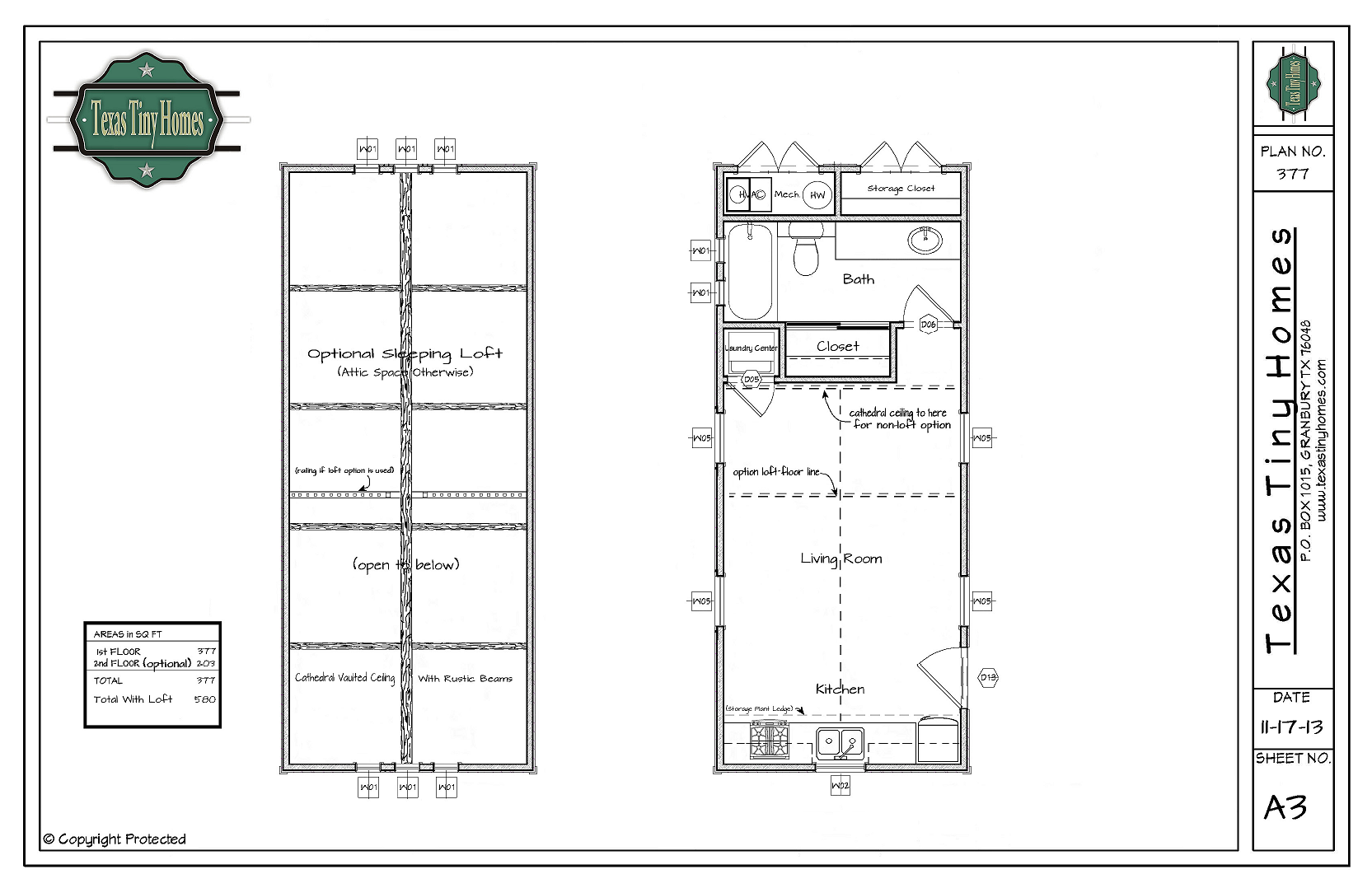
Floor Plan Presentation Sheet – For Website 2 Published September 12, 2014 at 1665 × 1078 in Plan 377